Yahoo! JAPAN

じわじわと人が湧く谷・西池袋「ニシイケバレイ」。残すために変えていく、時間をかけた開発とは?

さんたつ

【散歩の達人】人が湧く谷_8

西池袋の一角、2020年に生まれた「ニシイケバレイ」は複数の建物からなるエリア。ビルの谷間は緑にあふれ、いつも人の声がして、今も少しずつ進化中。ここは一体どういう場所?

CaD(カド)

お話を伺ったのは……

深野弘之さん
オーナー、深野家17代目当主。エリア開発の全体監督を務める。

日神山晃一さん
インテリアデザイナー。プランニングや各エリアの設計・施工を担当。

須藤 剛さん
建築家。エリア全体の設計や建築、内装の設計を手掛ける。

『Chanoma』とニシイケバレイ一帯を「TELAS」の上階から見下ろす。中央に写っているのが、右から日神山さん、深野さん、須藤さん。

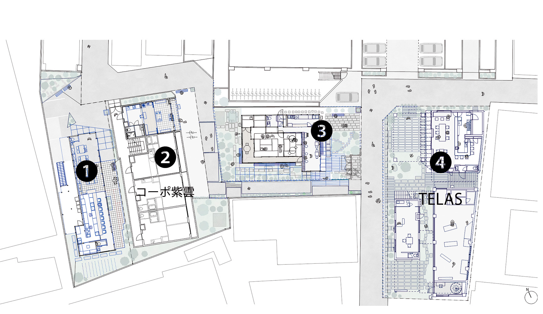
ニシイケバレイ

(1)1F/和酒酔処 わく別誂
池袋駅前で人気の割烹料理店の2号店。

(1)2F/Attic
コワーキングスペース&シェアキッチン。

(2)1F/うつわ base FUURO
目白『FUURO』(休業中)の2号店。

(3)Chanoma
古民家を改装したカフェ・イベントスペース。

(4)1F/PŪL
デリカとお酒の店。ランチ営業もスタート。

(4)1F/PLAY STREET
街なかのような構造物で遊べるパルクールジム。

(4)1F/3rrrd
2025年5月に完成したシェアスペース。

ニシイケバレイ
住所:東京都豊島区西池袋5-12-3/アクセス:JR・私鉄・地下鉄池袋駅から徒歩4分

「気持ちのいい風が通る街にしたい」

はじめてこの谷に迷い込んだ時のことはよく覚えている。どこに向かうでもなく歩いていると、路地を抜けた先に数軒の古い建物が現れた。軒先に緑がそよぎ、曲がりくねった小径(こみち)があって、道端のベンチにはのんびりおしゃべりする人たち。ビルの間にぽっかりあいた空が眩しくて、そこだけ穏やかな風が流れているような不思議な場所だった。後に、それは「ニシイケバレイ」という名のエリアだったことを知る。

「一帯をどういう場所にしていこうか考えるところから始まりました」と話すのは、2019年にこの土地を受け継いだ深野さん。敷地は約3000平方m、自身も暮らしていた築70年以上の平屋をはじめ複数の建物がある。宝塚市で同規模のエリアマネジメントを進めていた「INNO(イノ) TOWN」を知り、同じように「直径100mのまちづくり」を実践できないかと思案。池袋のイベントやリノベーションスクールで顔を合わせていた面々に相談し、縁がつながって、ニシイケバレイは動き出した。

『Chanoma』の中はほぼ民家の頃のまま。
縁側で話す日神山さん(右)と須藤さん。

プランニングを手掛けた日神山さんは「複数の建物を含む範囲に携われる機会はなかなかないし、ポテンシャルがあると感じました」と言う。「池袋のような街のすぐ裏にこういう余白が残っているのは珍しい」と設計担当の須藤さんもうなずく。

開発前の一帯はひと気がなく空間が分断されているような雰囲気で、日神山さんいわく「街の死角」。それを改善すべく、それぞれの建物を囲む塀を取り払い、庭を生かし、緑を増やすことで、ゆるやかにつながる場所へと進化させてきた。「物理的にも人間関係の面でも、気持ちのいい風が通る街にしたいねと当初から話し合っていました。道を歩いていても、敷地内で何をしているのか見えたり気配が感じられたりと、“シーンが見える”ことが大事だと思うんです」と日神山さん。

深野さんが平屋に住んでいた際は住み開きとして庭でイベントを催すこともあったというが、住居だけの場所ですべてをオープンにするのはなかなか難しい。エリアの中核施設となるカフェ『Chanoma』をはじめ飲食店やシェアスペースを設けることで、住んでいる人が利用し行き交う場所が生まれたのだ。

『Chanoma』の入り口はしっかりリノベされている。
抹茶ラテ700円(手前)が特に人気。

文脈をつなぎ、時間をかけて血が通った場所になる

通りから見える『和酒酔処 わく別誂』。

つながりを重視しているのは空間だけではない。建物の再生を段階的に行っているのも一つの特徴だ。

「一気に変えた方がインパクトはあるのですが、大きな開発は解体や工事で数年間人が使えない空白の時間ができてしまう。街の文脈が途切れないよう更新していくことが必要なんです」と須藤さん。顔が見えるやりとりを重視し、テナントにもビジョンを伝えて、住民との関係づくりにも時間をかけてきた。これも「開発」には違いないのだけれど、人工的なにおいがせず血が通った場所として感じられるのは、丁寧な対話によって地域の人々にも受け入れられたからなのだろう。

無作為なようで実は手入れが行き届いている緑に植木屋の技が光る。

取材時の西池袋は週末にふくろ祭りを控えていて、「TELAS」の一角には神酒所の設営が進んでいた。地域の祭りがかかわる場所として、伝統を引き継ぐ地点にもなりつつあるというわけだ。自身の子供たちのことも考え、次の世代に受け渡すことも意識しながら、更新はつづく。「『TELAS』がオープンしたことが一区切りではありますが、引き続きアップデートは続けていくし、ソフト面もさらに育ていきたい」と深野さんは意気込む。

「TELAS」建物間の通路。

そんなニシイケバレイの変化を見て「楽しそうだと思った」と言う須藤さん。自身が暮らす目白の街にも目を向け、設計事務所に併設した小さな複合施設『CaD』を2024年にオープンした。「目白は商業地と住宅地がはっきり別れてしまっているのですが、車庫一つ分があれば住宅地にも街にひらいた場がつくれる。こういうスペースが増えることで、奥行きのある街になったらいいなと思います」。

目白通りから1本入った住宅地にある『CaD』。

人の縁、土地の文脈、そして空間のつながりをつくり出し守ることで、人の気配が絶えない場所になったニシイケバレイ。別の街に活気が生まれるきっかけになる日も遠くないかもしれない。この谷に吹く穏やかな風は、やがてビルを越え、西池袋の外へと広がってゆくはずだ。

住宅地に、ふらっと寄れる約5坪の一角『CaD』

店内はわんこ連れOK!
ホットドッグ1080円、クラフトレモネード650円。大きな窓のそばはテラス席のような開放感で風が心地よい。
同じ1階にある事務所も、立体的に空間がつながった設計だ。

街歩きついでにお茶する人もいれば、ハムを買って帰るご近所さんもいる。立ち上げの際『Chanoma』が監修したドリンクのほか、建築事務所の縁で出合った沖縄『TESIO』のソーセージ、清澄白河の店舗を設計した『IMADEYA』セレクトのワインなど、須藤さんがこれまでに出合った魅力をぎゅっと詰め込んだ空間だ。ポップアップを開催したり、地域のイベントを主催したりと、目白のつながりを広げる拠点になっている。

CaD(カド)
住所:東京都新宿区下落合3-20-15/営業時間:11:00~19:00/定休日:月(祝の場合は翌火)/アクセス:JR山手線目白駅から徒歩7分

取材・文=中村こより 撮影=山出高士
『散歩の達人』2025年11月号より

中村こより
もの書き・もの描き
1993年東京生まれ、北海道育ち。中央線沿線に憧れて三鷹で暮らした後、坂のある街に憧れて現在は谷中在住。好きなものは凸凹地形、地図、路上観察、夕立。挑戦したいことは測量と東海道踏破。

【関連記事】

おすすめの記事

新着記事

  1. クラゲに癒される空間に すみだ水族館 「ゆらめく時間展 光の中で、クラゲと。」開催

    あとなびマガジン
  2. 「日常でも使いたい!」釣りフェス2026で編集部が気になったアパレル&ギア3選

    TSURINEWS
  3. 【柏崎市・大崎温泉 雪割草の湯】夕日がきれい!海岸沿いにある日帰り温浴施設

    日刊にいがたWEBタウン情報
  4. 話題のシールも手に入るかも♡ 週末限定のシール専門店がオープン! 【大阪・岸和田】

    anna(アンナ)
  5. 世界的名画が大阪へ!フェルメール「真珠の耳飾りの少女」2026年夏に来日

    PrettyOnline
  6. ロッテリア、チョコ好きにはたまらないチョコづくしのスイーツ4品販売!「濃厚Chocolateフェア」開催!

    WWSチャンネル
  7. KERA&緒川たまきによるユニット「ケムリ研究室」最新作のヒントを初参加の瀬戸康史と共に探る

    SPICE
  8. タイムレスな音楽が彩る新たな“年の瀬の風物詩”が神戸に誕生 佐野元春、Original Loveら出演の『KOBE MUSIC COMMONS 2025』オフィシャルレポートが到着

    SPICE
  9. 藤井フミヤ、墓参りするほど愛するウィーンの画家に「見せたい」と絶賛、没入型展覧会『クリムト・アライブ 大阪展』の注目ポイントとは

    SPICE
  10. 映秀。、東名阪ワンマンツアー「Fly You to the Moon Tour」開催決定

    SPICE